32791 Lage, Dachgeschosswohnung zur Miete
Erstbezug – Hochwertige 3-Zimmer-Wohnung im DG
Kontaktdaten
-
FirmaGRUND.auf GmbH
-
AnschriftHellfeld 59
33729 Bielefeld -
E-Mail
-
Telefon
-
Fax00495219769899
Objektdaten
-
Objekt-ID2026-02
-
ObjekttypenDachgeschosswohnung, Wohnung
-
Adresse32791 Lage
-
Etagen im Haus3
-
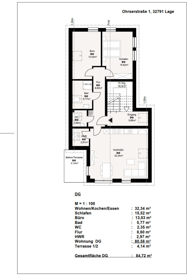
Zimmer3
-
Schlafzimmer2
-
Badezimmer1
-
Separate WC1
-
Balkone1
-
HeizungsartZentralheizung, Fußbodenheizung
-
Wesentlicher EnergieträgerWärmepumpe
-
Baujahr2026
-
Zustandneuwertig
-
AußenstellplatzStellplatzmiete: 60,00 EUR (Anzahl: 1)
-
Kaution2.051,62 EUR
2 Monatsmieten -
Kaltmiete1.025,81 EUR
-
Miete pro m²11,40 EUR
-
Nebenkosten181,27 EUR
-
Heizkosten100,00 EUR
-
Warmmiete1.307,08 EUR
Ausstattung / Merkmale
- ✓ Balkon
- ✓ Kein Keller
- ✓ Separates WC
Energieausweis
-
EnergieausweistypBedarfsausweis
-
Gültig bis17.03.2033
-
GebäudeartWohngebäude
-
Baujahr lt. Energieausweis2026
-
PrimärenergieträgerWärmepumpe
-
EnergieeffizienzklasseA+
Objektbeschreibung
Beschreibung
Diese attraktive Neubauwohnung im Erstbezug begeistert mit einer modernen, offenen Raumgestaltung, die insbesondere im Wohn- und Küchenbereich ein großzügiges und einladendes Wohngefühl schafft. Von hier aus gelangen Sie direkt auf den sonnigen, nach Süd-Westen ausgerichteten Balkon, der ideale Voraussetzungen für entspannte Stunden im Freien bietet.
Das großzügig geschnittene Schlafzimmer bietet viel Raum für eine individuelle Einrichtung und schafft eine angenehme Rückzugsmöglichkeit. Das neu errichtete, hochwertig ausgestattete Badezimmer überzeugt mit eleganten Bodenfliesen, stilvollen Sanitärobjekten und barrierearmem Komfort. Die großzügige, ebenerdige Dusche fügt sich harmonisch in das moderne Gesamtkonzept ein und unterstreicht den gehobenen Ausstattungsstandard.
Für ein rundum angenehmes Wohngefühl sorgt die Fußbodenheizung in allen Räumen. Große Fensterfronten durchfluten den Wohnbereich mit Tageslicht und schaffen eine helle, freundliche Atmosphäre sowie ein großzügiges Raumgefühl.
Ein PKW-Stellplatz ist für 60,00 € monatlich zusätzlich zur angegebenen Kaltmiete vorgesehen.
Ausstattung
- Hauswirtschaftsraum mit Multimediaanschluss und Waschmaschinenanschluss
- PKW-Stellplatz
- KfW 55 Standard
- offene Wohnküche
- Fußbodenheizung, regulierbar je Raum
- ebenerdige Dusche
- elektrischer Handtuchheizkörper
Sonstiges
Maximale Energieeffizienz trifft auf moderne Architektur: Das Wohnhaus wurde nach Deutschlands höchstem energetischen Standard realisiert.
Auf Wunsch des Vermieters wird ein Staffelmietvertrag geschlossen. ( 6 % alle 2 Jahre)
Die Mindestmietdauer beträgt 2 Jahre.
Die Wohnung ist ab dem 01.05.2026 verfügbar.
Besichtigungstermine sind nach Absprache mit der Verwaltung voraussichtlich ab April möglich. Nutzen Sie hierfür bitte das Kontaktformular über dieses Portal.
Wir weisen an dieser Stelle darauf hin, dass sämtliche Informationen vom Eigentümer oder Dritten gemacht wurden und wir keine Haftung übernehmen.
Lage
Diese Wohnung befindet sich in zentraler Lage von Lage (Lippe) und verbindet eine gute Infrastruktur mit einer angenehmen Wohnatmosphäre. Alle Einrichtungen des täglichen Bedarfs sind bequem erreichbar: Supermärkte, Bäckereien sowie weitere Einkaufsmöglichkeiten befinden sich in unmittelbarer Nähe. Auch Ärzte, Apotheken und weitere Dienstleister sind gut erreichbar. Kindergärten und Schulen liegen nur wenige Minuten entfernt und sind sicher durch gewachsene Wohngebiete zu erreichen.
Eine gute Verkehrsanbindung ist ebenfalls gegeben: Bushaltestellen befinden sich in der Nähe und sorgen für eine schnelle Verbindung in die Innenstadt sowie in die umliegenden Städte. Der Bahnhof Lage bietet zudem eine komfortable Anbindung an den regionalen Bahnverkehr, unter anderem in Richtung Detmold, Lemgo und Bielefeld.
Das Stadtzentrum von Lage mit seinen vielfältigen Einkaufsmöglichkeiten, Cafés und Restaurants ist bequem zu Fuß oder mit dem Fahrrad erreichbar. Erholungssuchende profitieren von der naturnahen Umgebung: Spazier- und Radwege entlang der Werre sowie nahegelegene Grünflächen und Naherholungsgebiete laden zu entspannten Stunden im Freien ein.
Kindergarten 1 km | Grundschule 1 km | Realschule 1,90 km | Gymnasium 1,80 km | Autobahn 18 km | Zentrum 600 m
Die dargestellte Position der Immobilie ist nur eine ungefähre Angabe.
