32105 Bad Salzuflen, Erdgeschosswohnung zur Miete
Moderne 2-Zimmer-Erdgeschosswohnung mit Terrasse, hochwertiger Ausstattung & optionaler Einbauküche
Kontaktdaten
-
FirmaGRUND.auf GmbH
-
AnschriftHellfeld 59
33729 Bielefeld -
E-Mail
-
Telefon
-
Fax00495219769899
Objektdaten
-
Objekt-ID260408
-
ObjekttypenErdgeschosswohnung, Wohnung
-
AdresseHerforder Str. 103
32105 Bad Salzuflen -
EtageEG
-
Etagen im Haus3
-
WohnungsnummerWE 1
-
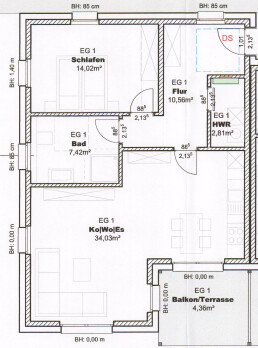
Wohnfläche ca.74 m²
-
Zimmer2
-
Schlafzimmer1
-
Badezimmer1
-
Terrassen1
-
HeizungsartZentralheizung, Fußbodenheizung
-
Wesentlicher EnergieträgerWärmepumpe
-
Baujahr2022
-
Zustandgepflegt
-
AußenstellplatzStellplatzmiete: 50,00 EUR (Anzahl: 1)
-
Kaution2.550,00 EUR
-
Kaltmiete850,00 EUR
-
Miete pro m²11,49 EUR
-
Nebenkosten90,00 EUR
-
Heizkosten80,00 EUR (in der Warmmiete enthalten)
-
Warmmiete990,00 EUR (Heizkosten enthalten)
Ausstattung / Merkmale
- ✓ Kein Keller
- ✓ Terrasse
Objektbeschreibung
Beschreibung
Die moderne, helle Architektur des Mehrfamilienhauses überzeugt mit stilvoll integrierten Terrassen. Anthrazitfarbene Fenster und Wohnungseingangstüren, Aufzug, Fahrradstellplätze sowie eigene PKW-Stellplätze sorgen für zeitgemäßen Komfort.
Die angebotene 2-Zimmer-Erdgeschosswohnung besticht durch einen offen gestalteten Wohn-, Koch- und Essbereich mit direktem Zugang zur Terrasse. Ein großzügiges Schlafzimmer, ein modernes Bad sowie eine durchdachte Raumaufteilung bieten hohen Wohnkomfort. Fußbodenheizung mit Einzelraumsteuerung und elektrische Rollläden runden das hochwertige Gesamtbild ab.
Auf Wunsch des Vormieters kann die hochwertige Einbauküche übernommen werden; die Preisabsprache erfolgt direkt mit diesem.
Die Wohnung ist mit einer modernen Einbauküche der Marke Häcker ausgestattet, die sich in nahezu neuwertigem Zustand befindet und nur wenig genutzt wurde. Sie umfasst sämtliche Elektrogeräte, überzeugt durch ihre hochwertige Verarbeitung sowie durchdachten Stauraum und ist optimal auf die Wohnung abgestimmt.
Ausstattung
- Großzügige Terrasse mit Beleuchtung und Steckdosen
- Integrierter Hauswirtschaftsraum mit Waschmaschinen- und Multimediaanschluss
- Eigener PKW-Stellplatz
- Aufzug & barrierearmer Zugang
- Offene Wohnküche
- Fußbodenheizung, je Raum regulierbar
- Modernes Bad mit ebenerdiger Dusche
- Elektrischer Handtuchheizkörper
- Elektrisch bedienbare Rollläden
- Energieeffizienter KfW-55-Standard
- KfW 55 Standard
Sonstiges
- Auf Wunsch des Vermieters wird ein Staffelmietvertrag geschlossen. ( 6 % alle 2 Jahre)
- Die Mindestmietdauer beträgt 2 Jahre.
Der zur Wohnung gehörende Stellplatz wird mit 50,00 € pro Monat berechnet.
Die Wohnung steht sofort zur Verfügung. Besichtigungstermine sind nach Absprache möglich.
Wir weisen an dieser Stelle darauf hin, dass sämtliche Informationen vom Eigentümer oder Dritten gemacht wurden und wir keine Haftung übernehmen.
Lage
Diese Wohnung befindet sich im schönen Kur-Ort Bad Salzuflen. In unmittelbarer Nähe der Wohnung befinden sich alle Einkaufsmöglichkeiten des täglichen Bedarfs. Ebenso ist eine gute Anbindung an den Nahverkehr gewährleistet.
Kindergarten 600 m | Grundschule 750 m | Realschule 4 km | Gymnasium 3 km | Autobahn 3 km | Zentrum 2 km










