32657 Lemgo, Etagenwohnung zur Miete
Exklusive Wohnung mit Sonnenbalkon
Kontaktdaten
-
FirmaGRUND.auf GmbH
-
AnschriftHellfeld 59
33729 Bielefeld -
E-Mail
-
Telefon
-
Fax00495219769899
Objektdaten
-
Objekt-ID360
-
ObjekttypenEtagenwohnung, Wohnung
-
AdresseLagesche Str. 61c
32657 Lemgo -
Etage1
-
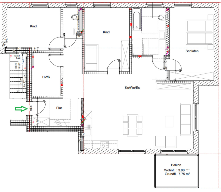
Wohnfläche ca.126 m²
-
Zimmer4
-
Schlafzimmer3
-
Badezimmer1
-
Separate WC1
-
Balkone1
-
HeizungsartZentralheizung, Fußbodenheizung
-
Wesentlicher EnergieträgerFernwärme
-
Baujahr2020
-
Zustandneuwertig
-
AußenstellplatzStellplatzmiete: 40,00 EUR (Anzahl: 1)
-
Kaution2.400,00 EUR
2 Monatskaltmieten -
Kaltmiete1.200,00 EUR
-
Miete pro m²9,52 EUR
-
Nebenkosten200,00 EUR
-
Heizkosten150,00 EUR
-
Warmmiete1.590,00 EUR (zzgl. Heizkosten)
Ausstattung / Merkmale
- ✓ Balkon
- ✓ Separates WC
Objektbeschreibung
Beschreibung
Hochwertige 4-Zimmer-Wohnung mit durchdachtem Grundriss und Balkon
Diese hochwertige 4-Zimmer-Wohnung überzeugt durch ihre exklusive Ausstattung und einen optimal durchdachten Grundriss. Der offene Wohn- und Küchenbereich bietet viel Raum zum Leben und Wohlfühlen. Das Schlafzimmer bietet Platz für einen großen Kleiderschrank, zwei weitere Zimmer lassen sich flexibel als Kinder-, Arbeits- oder Gästezimmer nutzen.
Das moderne Tageslichtbad ist halbhoch gefliest und mit Dusche, Badewanne sowie Glasabtrennung ausgestattet. Ein separates Gäste-WC ist ebenfalls vorhanden. Praktischen Stauraum und Platz für die Waschmaschine bietet der angrenzende Hauswirtschaftsraum.
Großzügige Fenster sorgen für viel Tageslicht und eine freundliche Wohnatmosphäre. Hochwertiger PVC-Designboden in allen Räumen sowie ein überdachter Balkon runden dieses attraktive Wohnangebot ab.
Ausstattung
Ausgestattet ist diese Wohnung mit:
- Fenster: Kunststofffenster 3-fach Isolierverglasung, innen weiß, außen anthrazit
- Bodenbeläge: Fliesen/Feinsteinzeug: im Bad , WC und HWR PVC; Designbelag in Holzoptik: in allen anderen Räumen
- Fernwärme Heizung, Fußbodenheizung mit Thermostatsteuerung in einzelnen Räumen
- Hauptbadezimmer: Badheizkörper in Handtuchhalteroptik
- Personenaufzug im Allgemeinbereich
Sonstiges
Auf Wunsch des Vermieters wird ein Staffelmietvertrag geschlossen ( 6 % alle 3 Jahre).
Die Mindestmietdauer beträgt 2 Jahre. Kündigt der Mieter das Mietverhältnis vor Ablauf von 25 Monaten, übernimmt er die vertraglich vereinbarte Maklercourtage zwischen dem Eigentümer und dem beauftragten Makler i.H.v. 2 Nettokaltmieten zzgl. MwSt.
Der zur Wohnung gehörende Stellplatz wird mit 40,00 € pro Monat berechnet.
Besichtigungstermine sind nach Absprache möglich.
Bei den Fotos handelt es sich teilweise um Beispielfotos aus dem Objekt.
Wir weisen an dieser Stelle darauf hin, dass sämtliche Informationen vom Eigentümer oder Dritten gemacht wurde.
Lage
Diese Wohnung liegt in gut angebundener Lage in Lemgo. Sämtliche Dinge des täglichen Bedarfs sind gut zu Fuß erreichbar.
Lemgo ist eine Stadt in Nordrhein-Westfalen und gehört zum Kreis Lippe. Die Stadt ist als Hochschulstadt die drittgrößte Stadt des Kreises Lippe und als „Stadt des Sports“ bekannt. Lemgo liegt etwa 12 km nördlich von Detmold unweit des Teutoburger Waldes in Ostwestfalen-Lippe. Der Stadtwald lädt auf seinen vielen Waldwegen zum spazieren und joggen ein.











